
2025年10月完成予定。隼人町東郷 NIIIモデル 平屋建て
霧島市
販売予定価格:未定
只今建築中!いましばらくお待ちください。
〈省令準耐火住宅・長期優良住宅〉
■所 在 地:霧島市隼人町東郷953-8
■土地面積:67.91坪(224.52㎡)
■延床面積:27.55坪(91.09㎡)
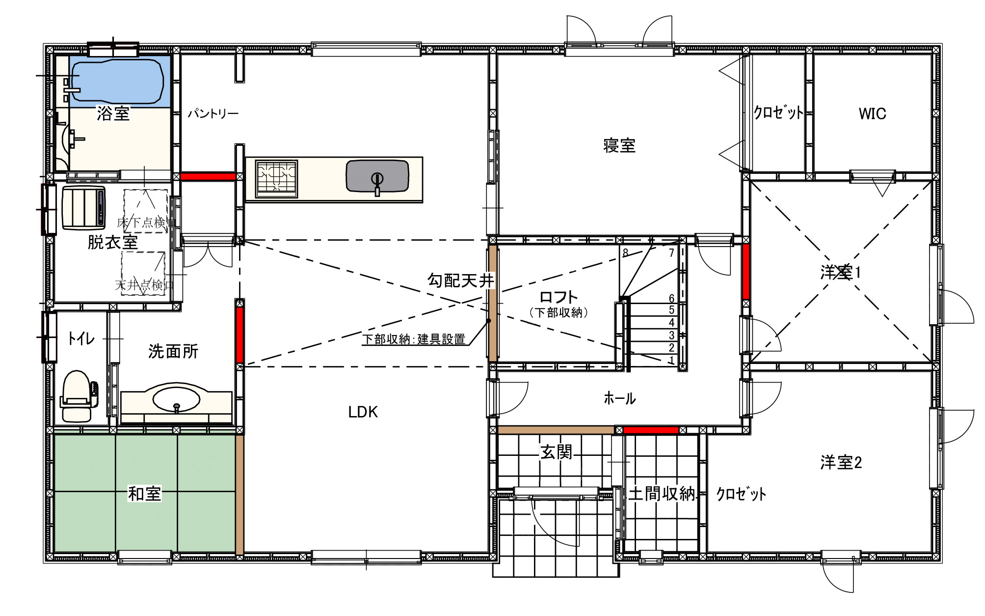
■構 造:コロニアル葺 木造 平屋建て 3LDK+畳コーナー+ロフト
■築 年 月:令和7年10月完成
■環 境:ホームプラザナフコ隼人店まで650m 日当山小学校まで1㎞ 日当山中学校まで900m
■交 通:西光寺 市街地循環バス停まで600m
■売 主:ニューイングホーム株式会社【鹿児島県知事(1)第6585号】

隼人町東郷NIIIモデル 完成予想パース

隼人町東郷NIIIモデル 平面図